Golden Opportunity with variety of options!!!

Prime location on Albany Highway with amazing Signage opportunities

Located opposite Gosnells Police Station

Within walking distance to Hungry Jacks and Gosnells IGA

Flexible Terms on Offer

Choose the size of the property that you want

Take the whole building or rent out a small section - The choice is yours

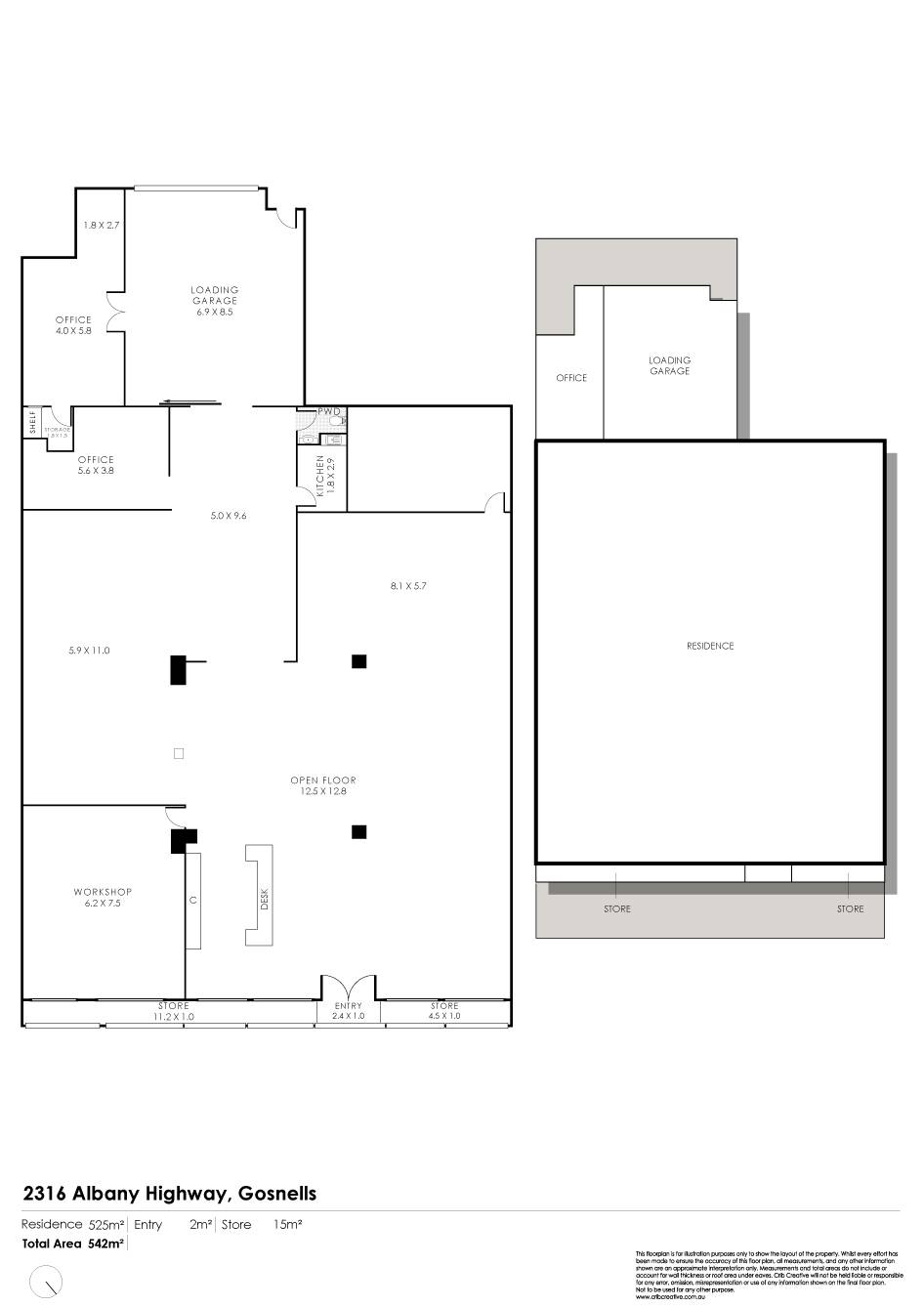
Copy of indicative floorplan included in the photos

Short Term leases considered

Owner happy to fit out property to your specs depending on rental terms and amount

Prices starting from only $150/m2 (Negotiatble) + GST per year + Outgoings 

Laneway with secure car bays protected by fence

Roller shutters to front of property

Solar panels on roof

Plenty of visitor parking on Gerald Street

This property was previously used by an Aquarium Business 

This is an unmissable opportunity!!!

8
Address 2316 Albany Hwy, Gosnells
Price UNDER APPLICATION!!!
Property Type Commercial
Property ID 294
Category Offices, Showrooms/Bulky Goods, Other
Office Area 400m2

Agent Details

Melvin Paul Singh photo

Melvin Paul Singh

0438458866
View Profile